PROJECTE D’URBANITZACIÓ DEL CARRER CORRONS (P.A. 39 PINELL 2)
- SOM C·P·S
- Jul 18, 2019
- 1 min de lectura
Actualitzat: Aug 12, 2019
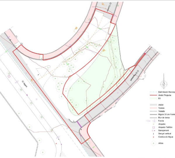
La consulta del projecte d’urbanització del C/ Corrons de S’Agaró es posa a disposició fins el dia 11/08/2019.
Com a trets característics d'aquest projecte s'ha de remarcar que:
- S’eliminaran 31 pins i no se’n plantaran de nous.
- Es realitzaran unes plantacions a la zona de la vorera de davant de la zona verda i a l’illa de divisió de vehicles. En el mateix carrer (entre els carrers Agaró i Mas Sais) es dóna el mateix cas i no hi ha plantacions. Creiem que és important que en el mateix carrer hi hagi una continuïtat en les voreres i els estils.

- Actualment hi ha una zona de contenidors (2 de rebuig i 1 d’orgànica). El projecte no en contempla la seva nova ubicació.















Comentaris